У меня большой опыт жизни в студиях и однушках. Мы с мужем долгое время снимали квартиры, прежде чем обзавестись первым собственным жильем.За это время наша семья где только не жила — в тесной «убитой» панельке, где пришлось самим делать ремонт; в роскошной студии площадью больше 40 квадратов (зато с ужасной хозяйкой — бывшей прокуроршей на пенсии, которая любила инспектировать квартиру в наше отсутствие); в 1-комнатной сталинке с красивым видом на городской парк (и я все еще с любовью вспоминаю эту однушку)… В общем, поверьте — опыт приличный 👌 Поэтому когда я увидела эту студию, то сразу захотела рассмотреть интерьер в деталях. Площадь квартиры — 23 квадратных метра.
Так жилой комплекс выглядит на проекте. Места тут, конечно, живописные. Да и близость к реке — тоже большой плюс.
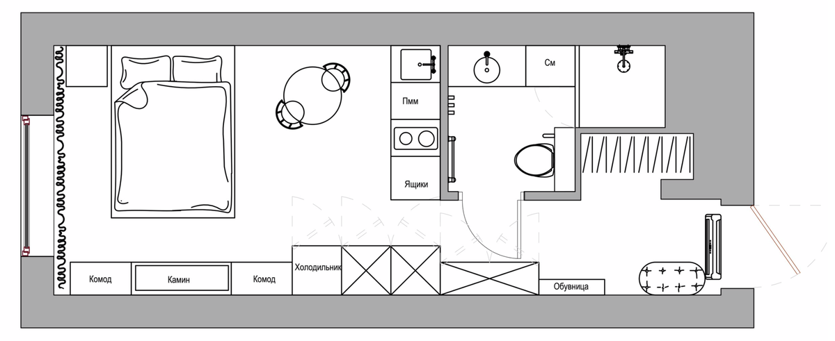
Так ЖК выглядит в реальности (осень добавляет хмурых красок). Квартира, в которую мы сегодня заглянем, находится на одном из верхних этажей Хозяйка квартиры — молодая девушка, работающая налоговым агентом. Бюджет на ремонт был небольшим, поэтому автор проекта Анастасия Заркуа решила сыграть на вау-эффекте за счет отделочных материалов и цветовой палитры. А вот мебель купили максимально недорогую. — Паркет, часть плитки, обои и некоторая сантехника уже были куплены хозяйкой квартиры. Мне нужно было это грамотно использовать и докупить недостающие элементы, — объясняет Анастасия. Посмотрим, что из этого получилось? Для начала покажу планировку квартиры.
Квартирка достаточно маленькая — 23 квадрата. Спорный вопрос, как жить на такой площади, но это куда лучше, чем съемное жилье
Так квартира выглядела на момент покупки. Отделка была типовой, от застройщика
В единственной жилой комнате разместили и кухню с обеденным столом, и спальню с кроватью. Кстати, в зоне кухни не видно холодильника. Он спрятан в шкафу у противоположной стены (посмотрите на планировку) / автор всех фото Роман Алексеев
Сначала меня смутило сочетание голубой плитки с зелеными шторами… Но потом я всё поняла… и оценила! — Когда все элементы собрались вместе, то я поняла: плитка на фартуке — озеро, а гуси будто бы из озера летят через рогоз и камыши на юг, — делится своим наблюдением Анастасия.А вам как такое сочетание?
Очень красивый цвет плитки. Роскошно сочетается с белым гарнитуром и такой же столешницей

Обычно в студиях стоят диваны, которые выполняют сразу две функции — и с гостями посидеть (если внезапно нагрянут), и ночью поспать. Но хозяйка этой студии остановила свой выбор на кровати. И, знаете, я ее хорошо понимаю — после жизни в съемных квартирах с неудобными диванами сложно придерживаться иного мнения — В соцсетях, где публиковались фотографии этой студии, многие писали: «Вот как спать на кухне?», «А где гостей принимать?». Ну, во-первых, как часто у вас бывают гости? Раз в году? И ради этого вы будете весь остальной год спать на диване? Спина вам не скажет спасибо, — говорит Анастасия Заркуа. Еще один аргумент в пользу кровати — довольно очевидный. Это маленькая площадь квартиры. — Площадь студии — всего 23 квадратных метра. Логично, что тут не сделаешь и зону спальни, и зону гостиной. Люди, которые такие квартиры покупают, прекрасно это понимают и выбирают комфорт, — рассуждает Анастасия.

Квартира хоть и крошечная, но здесь немало деталей, за которые цепляется взгляд. Например, гармоничное сочетание изголовья кровати, шелковой ленты на подушках и штор. А обои с летящими гусями — и вовсе шик! Очень уж они мне понравились…

Вместо картины запросто можно поставить телевизор (при необходимости), но у хозяйки пока нет такой потребности. Посмотреть фильмы можно и на ноутбке
Вдоль всей стены напротив кровати организованы места для хранения. Их более, чем достаточно
Ванная комната, несмотря на скромные габариты квартиры, довольно просторная. Здесь нет ванны, но есть вместительный душ. Да и для стиральной машинки нашлось место
На этом фото чуть лучше видно, как устроен душ
Эту квартиру можно запросто назвать амбассадором шалфейного цвета — он есть и в жилой комнате, и в ванной
Вид из прихожей на единственную комнату. Вид из окна — тоже очень хороший, на парк с прудами. Даже жалко, что в этой квартире всего 23 квадрата… Рано или поздно такое жилье придется менять на более просторное (вдвоем здесь будет уже очень тесно)
На этом экскурсия подошла к концу. Как вам ремонт? Мне, как заядлому квартиросъемщику в прошлом, очень понравился. Студия получилась уютной, стильной и эргономичной. Очень понравились обои и шалфейные стены. Хотя больше всего запала в душу ванная комната.
А вы какие плюсы/минусы подметили? Поделитесь мнением, обсудим в комментариях 📝
Автор